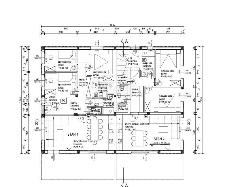
REC ID# 1218431 - POREČ