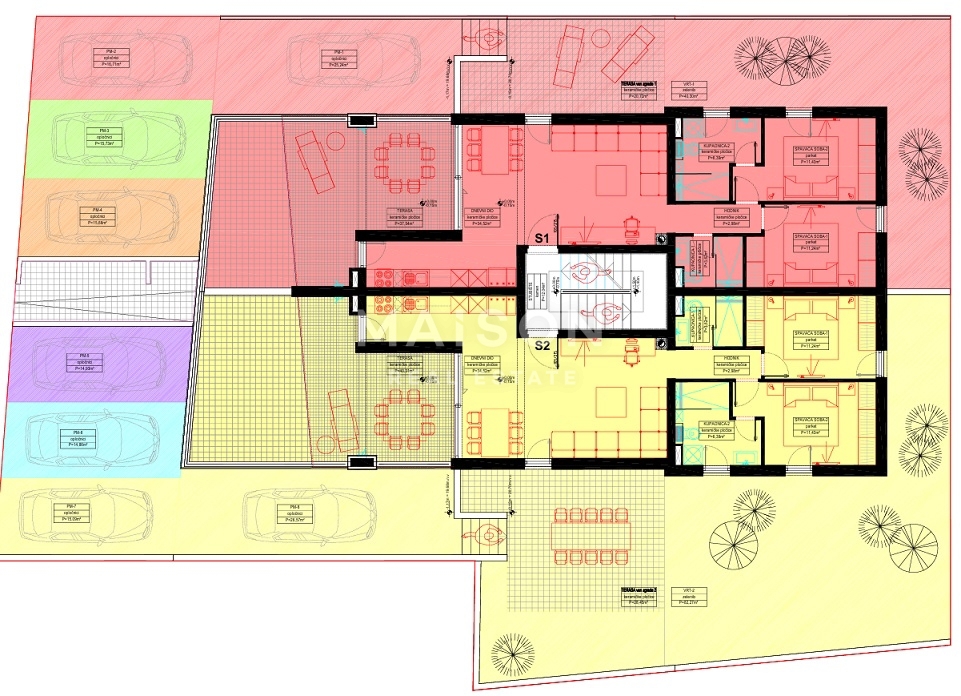
REC ID# 1224066 - ŠIMUNI