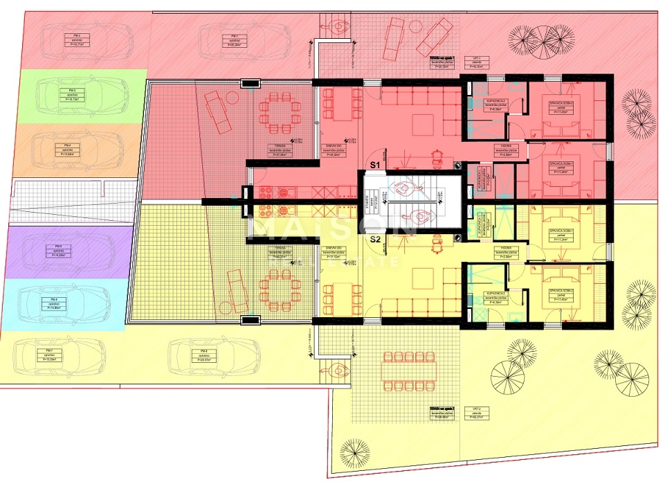
REC ID# 1224067 - ŠIMUNI