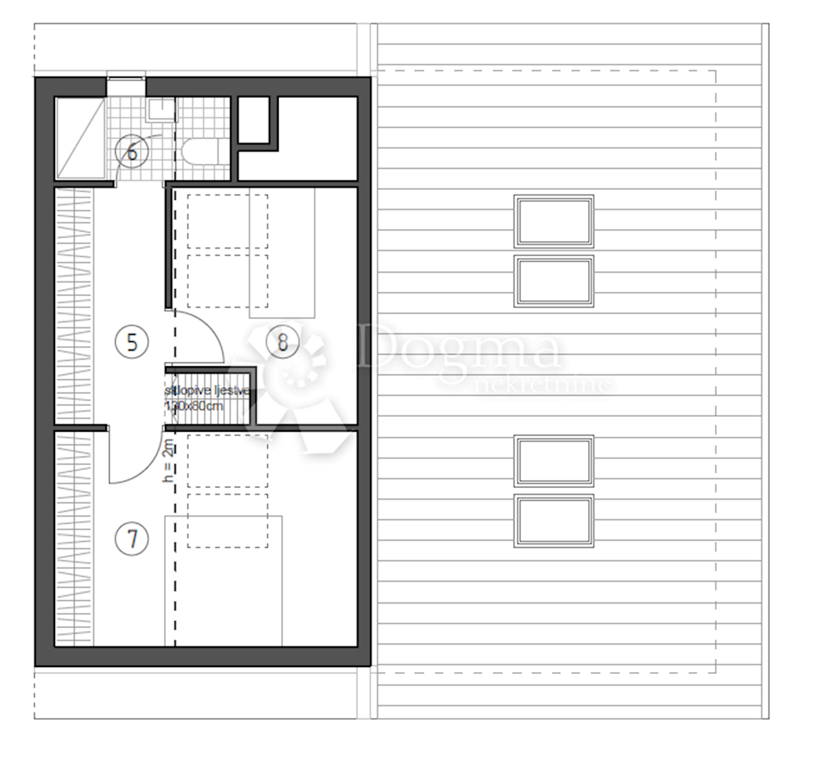
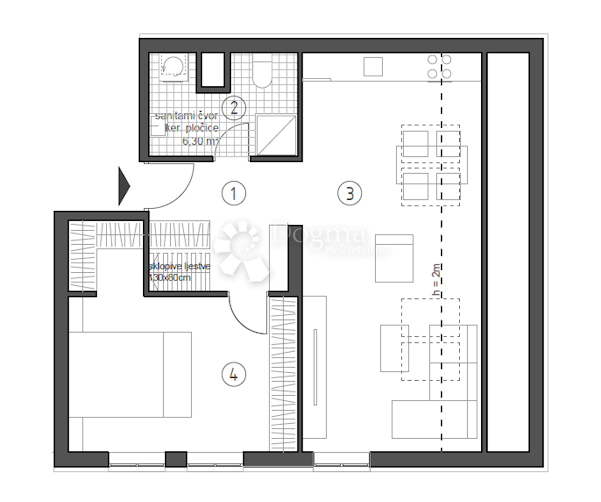
REC ID# 997969 - BRESTJE