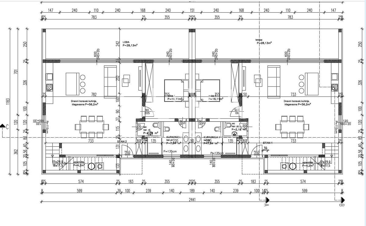
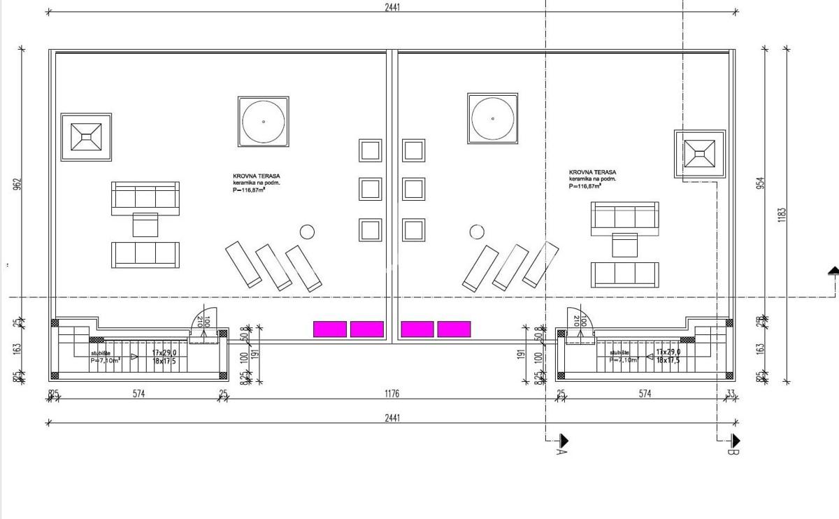
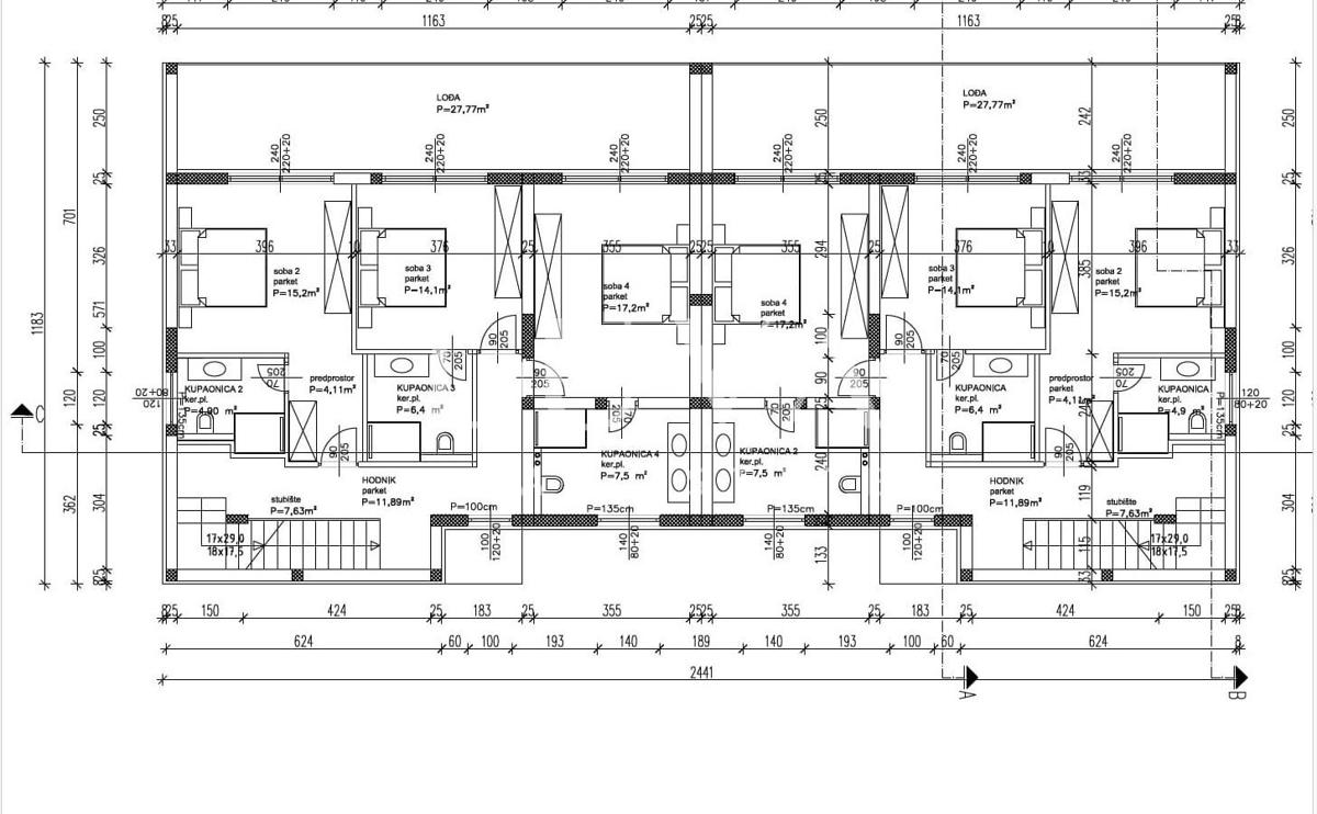
REC ID# 1232896 - DRAGE