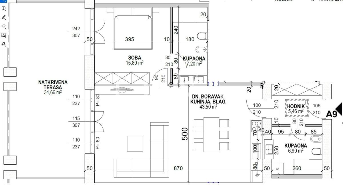
REC ID# 1232977 - OPATIJA