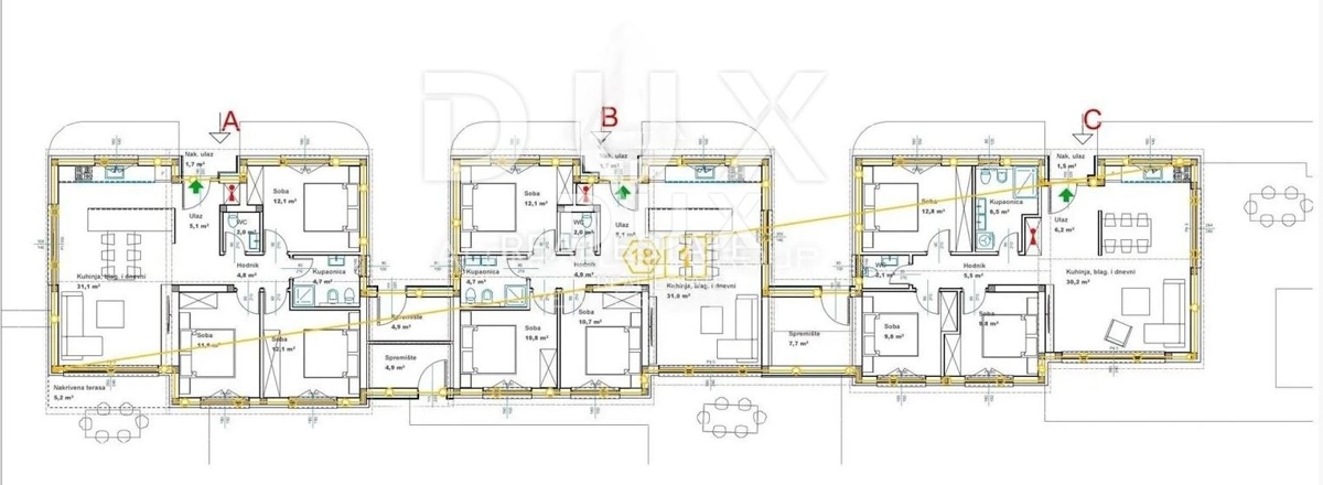
REC ID# 1225288 - POREČ