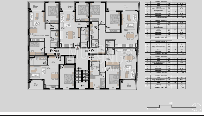
REC ID# 1225402 - POREČ