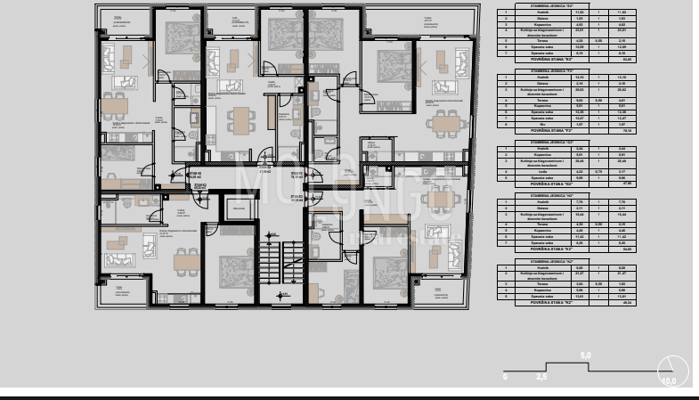
REC ID# 1225404 - POREČ