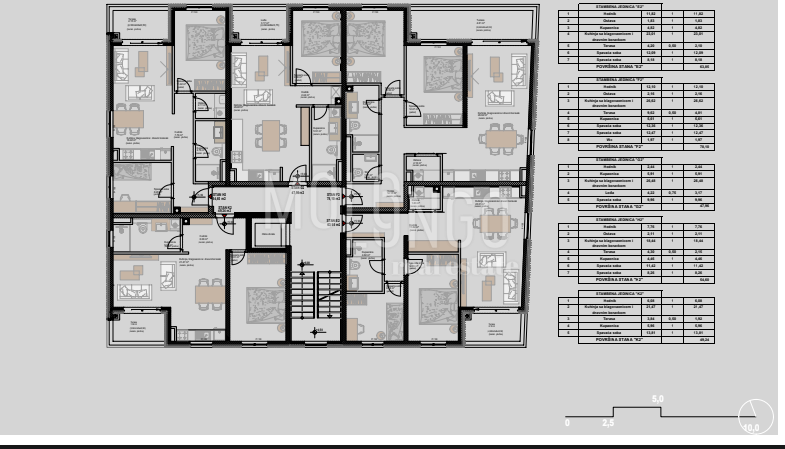
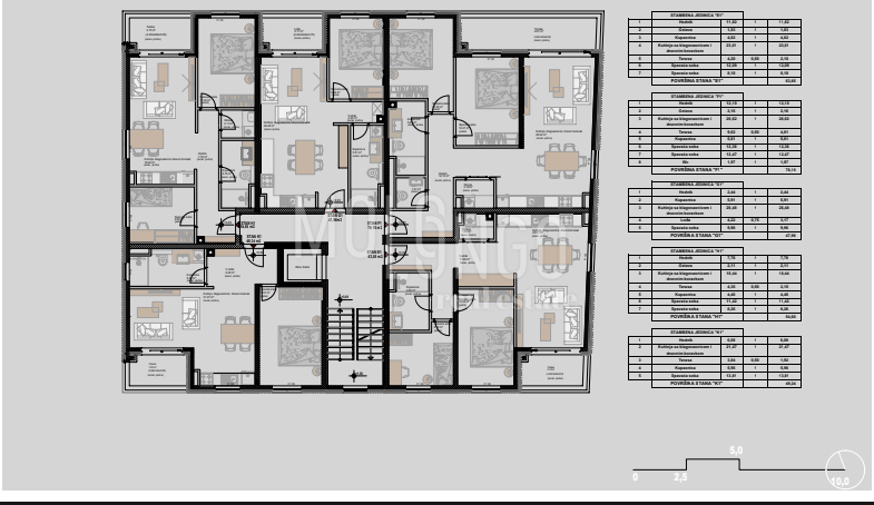
REC ID# 1225406 - POREČ