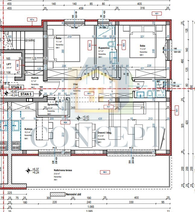
REC ID# 1233390 - POREČ