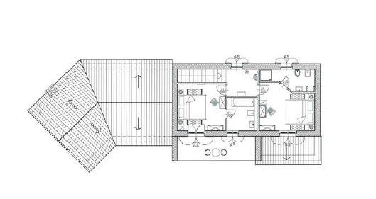
REC ID# 1236074 - POREČ