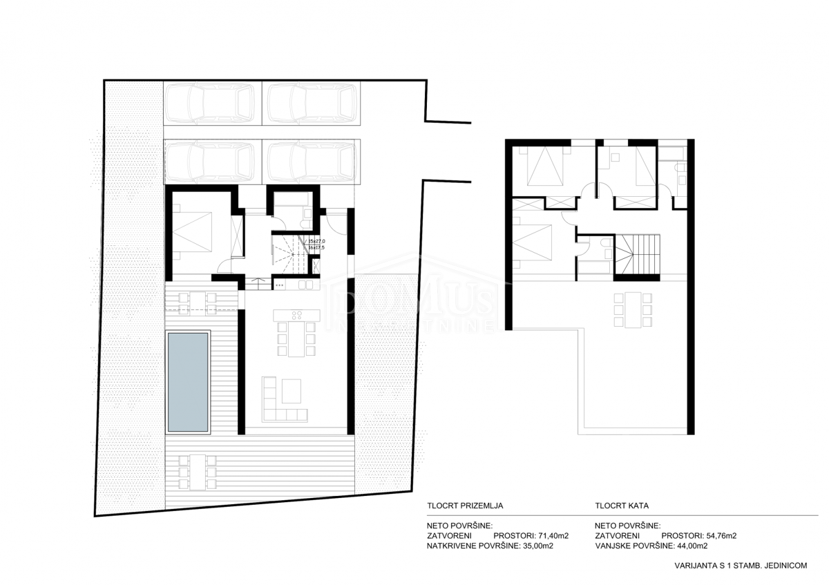
REC ID# 1223752 - SRIMA