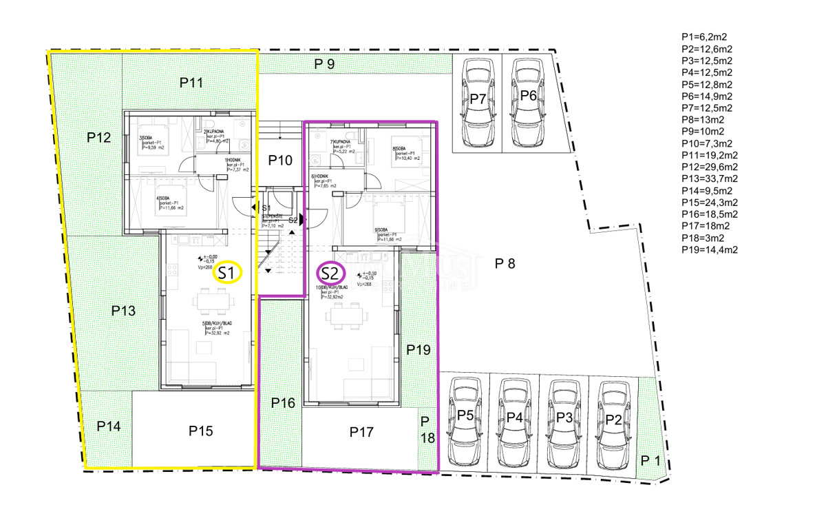
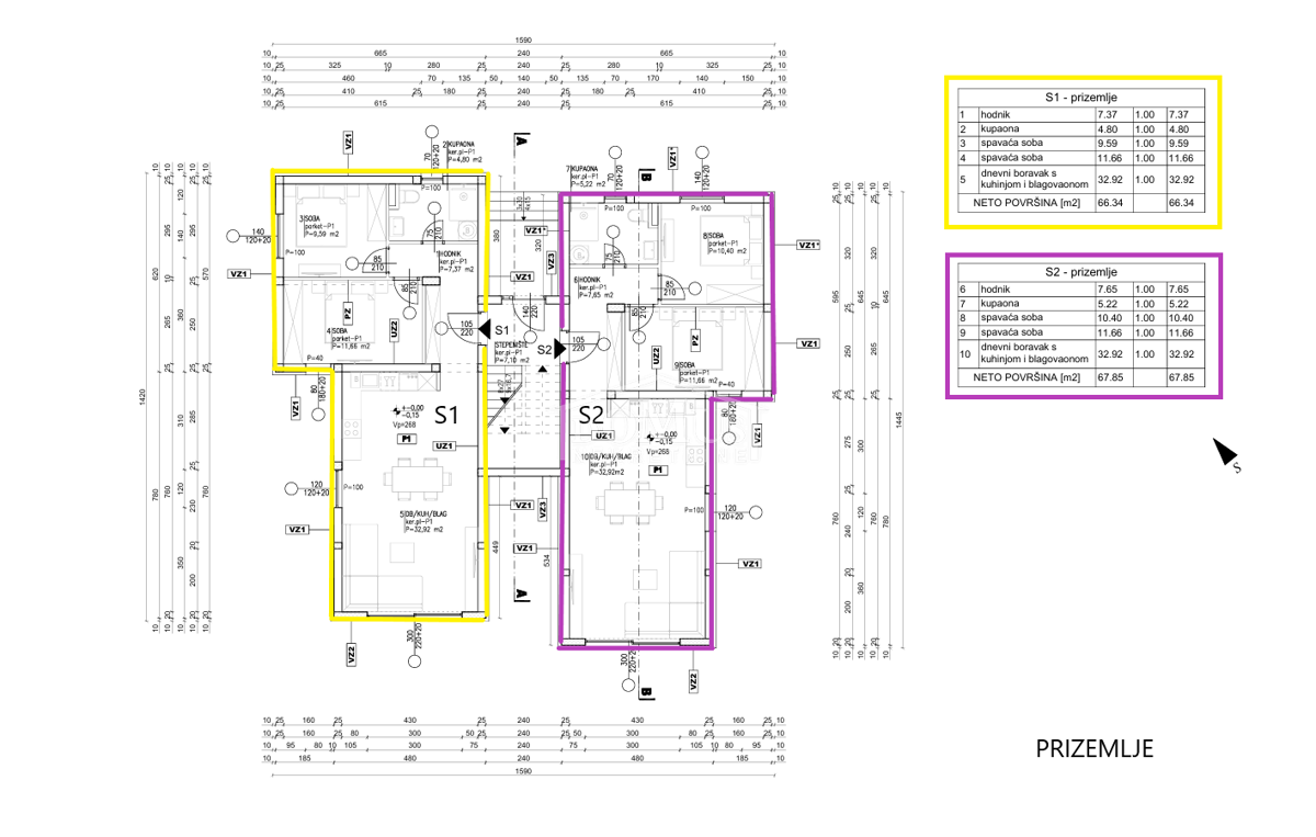
REC ID# 1233668 - VODICE