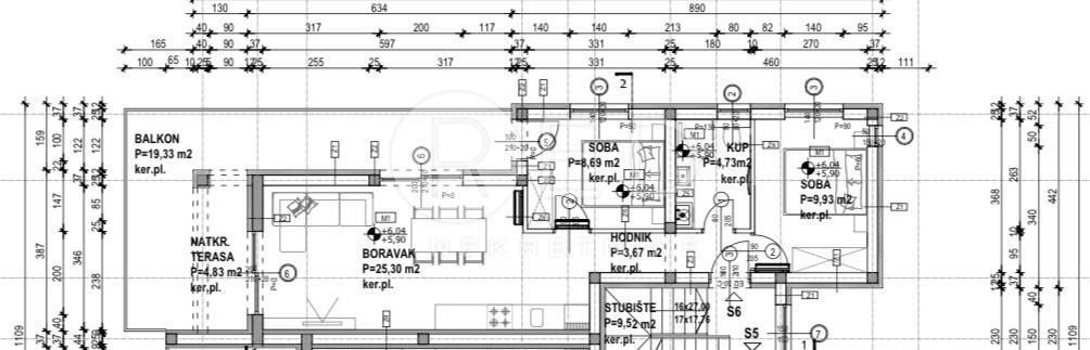
REC ID# 1231680 - POVLJANA