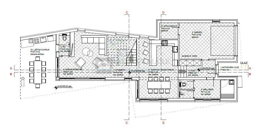
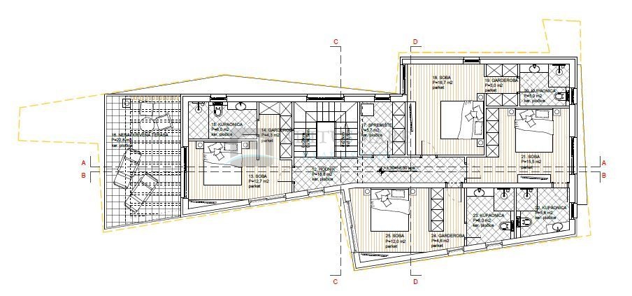
REC ID# 1110380 - PRIMOŠTEN