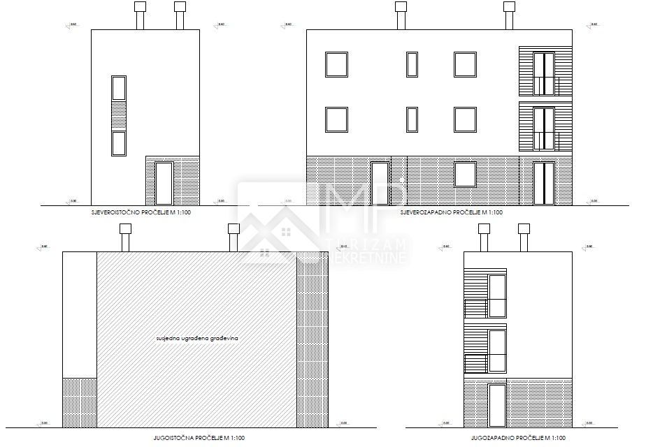
REC ID# 1211761 - PULA