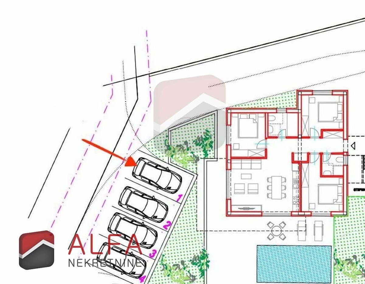
REC ID# 1129099 - VODICE