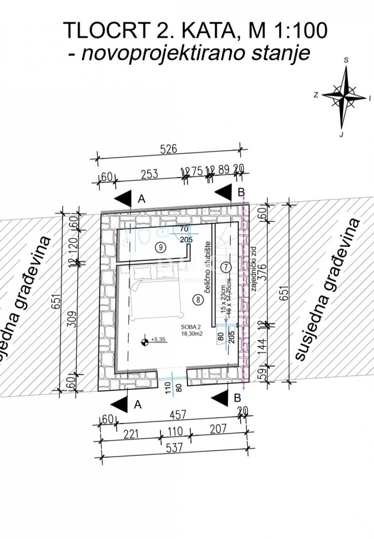
REC ID# 1218568 - KRASICA