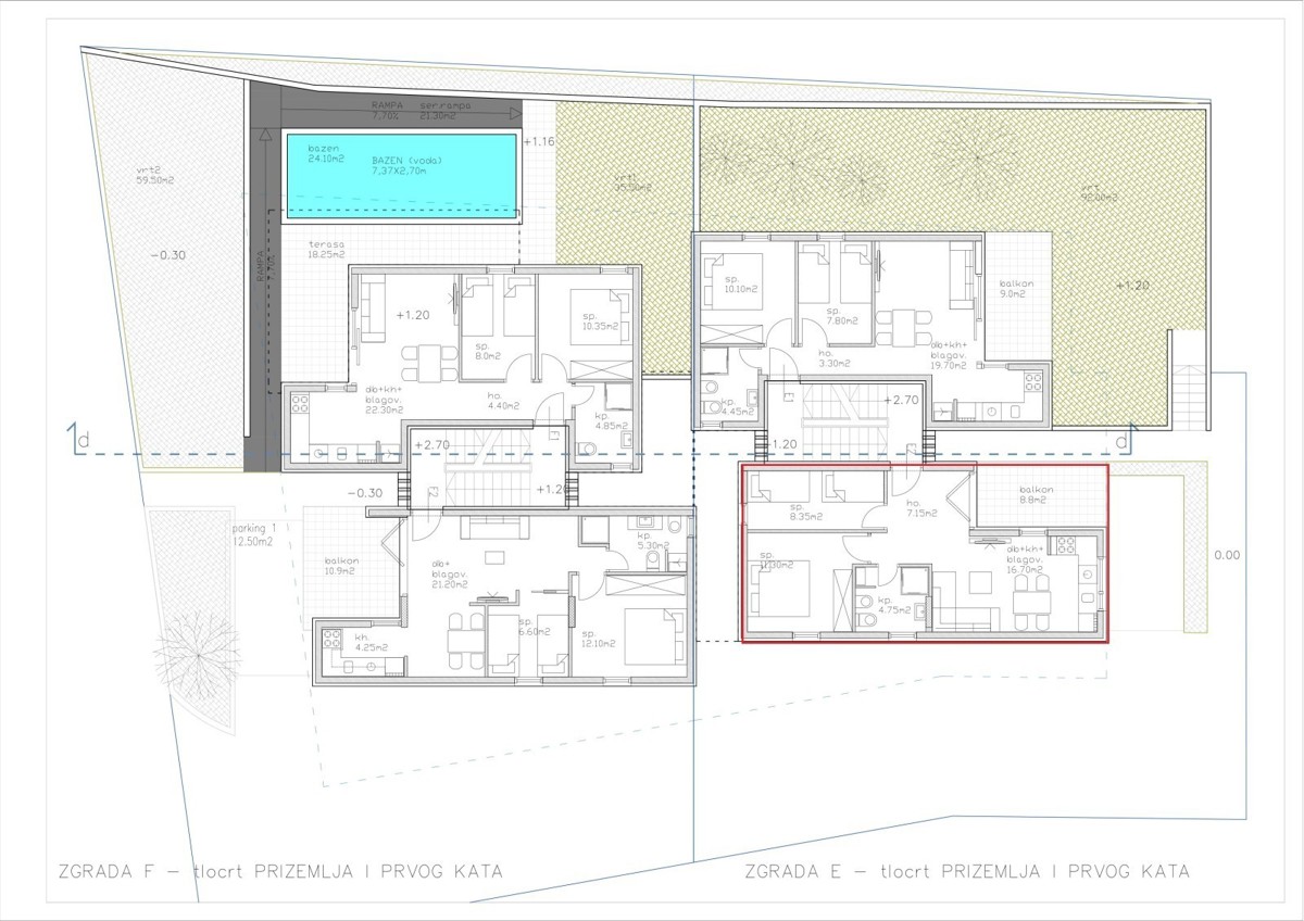
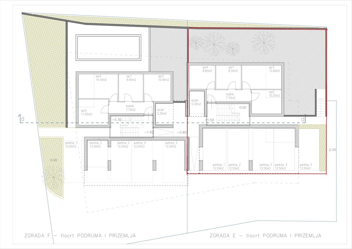
REC ID# 1221788 - LOVREČICA