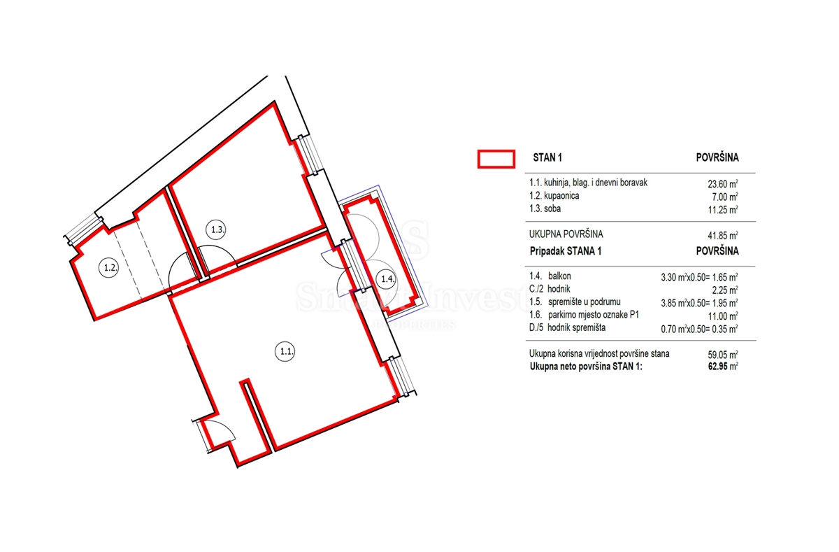
REC ID# 1221400 - OPATIJA