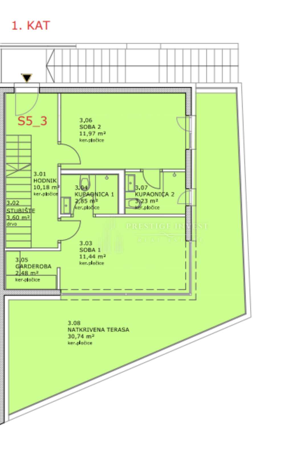
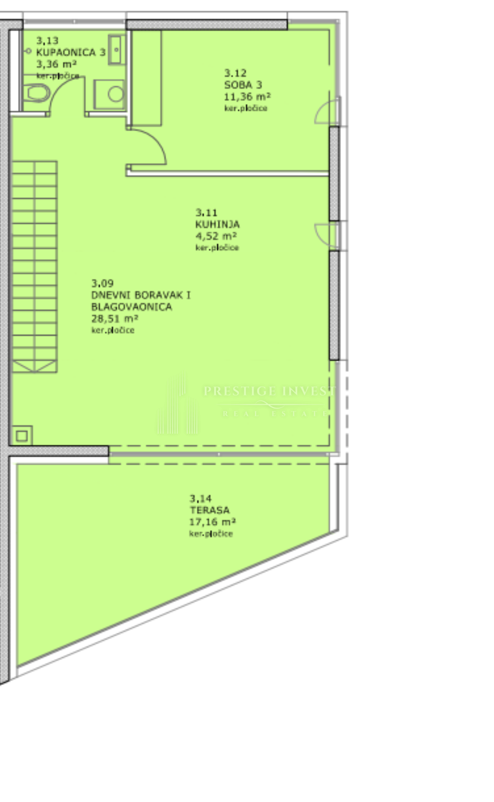
REC ID# 1218700 - SUKOŠAN