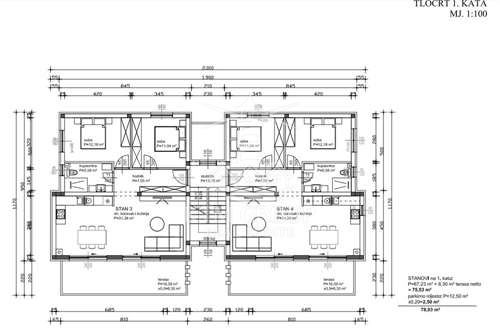
REC ID# 1222409 - SUKOŠAN