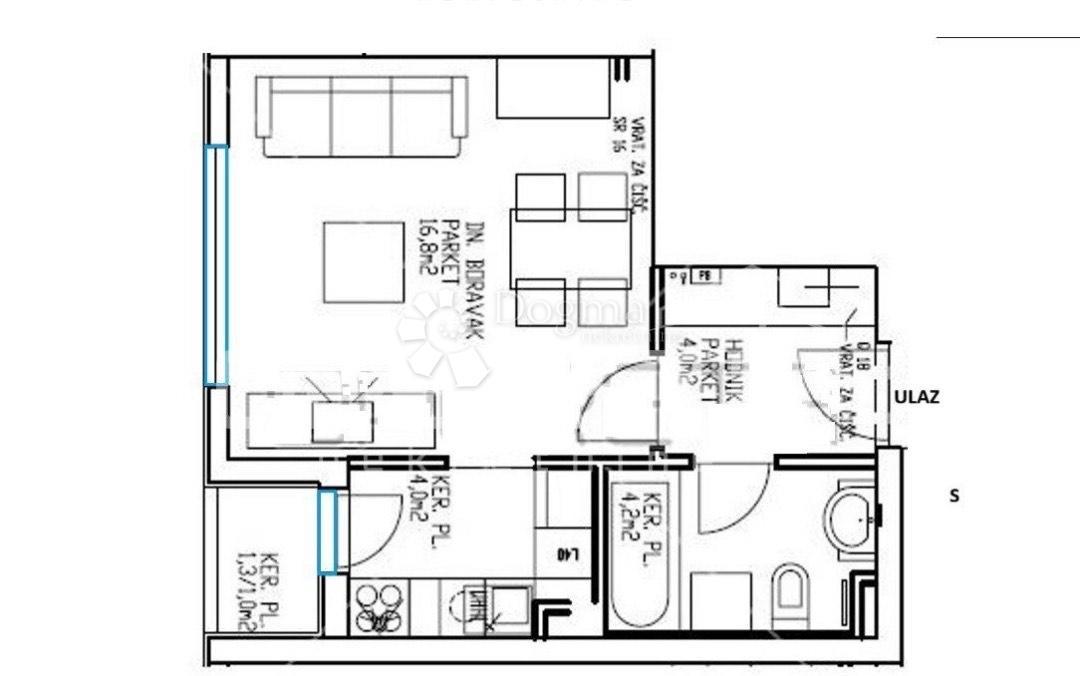
REC ID# 1225918 - ČRNOMEREC