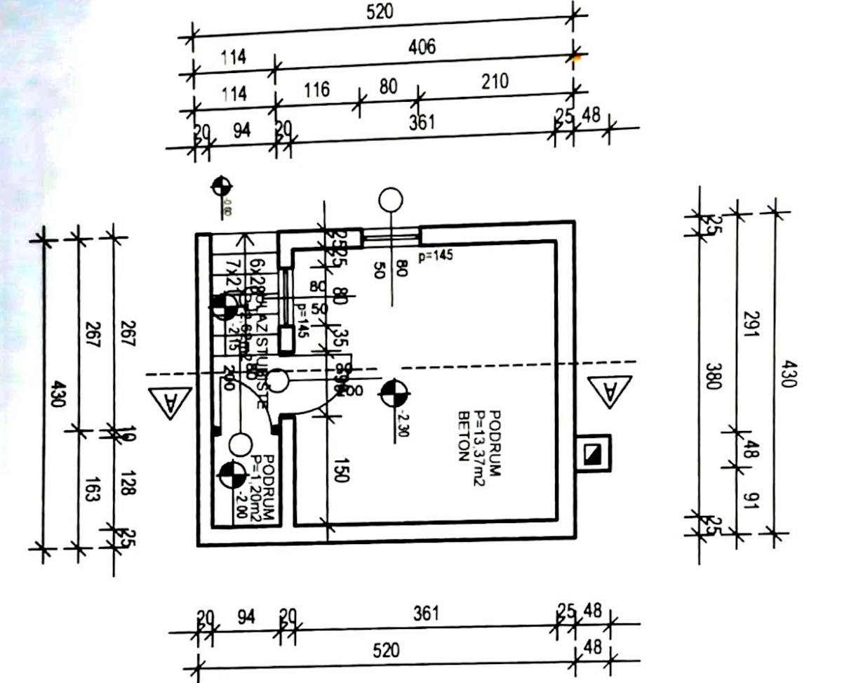
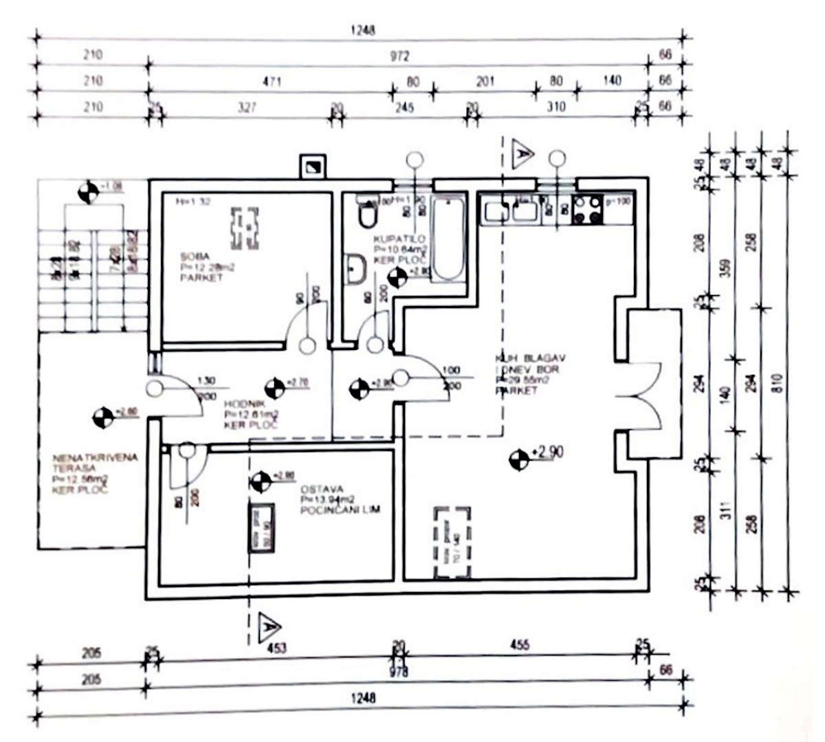
REC ID# 1140768 - BOROVJE