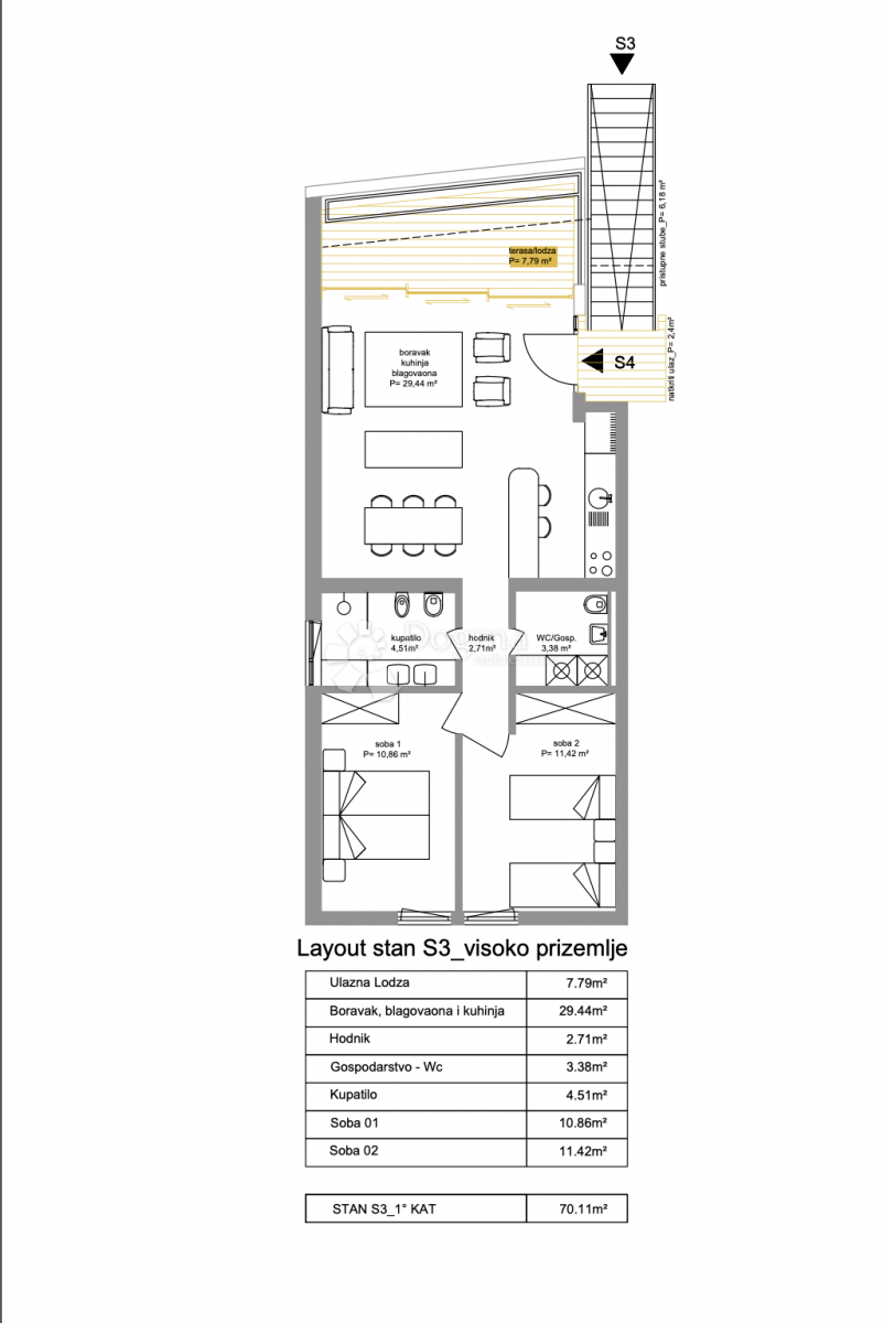
REC ID# 1218784 - BRODARICA