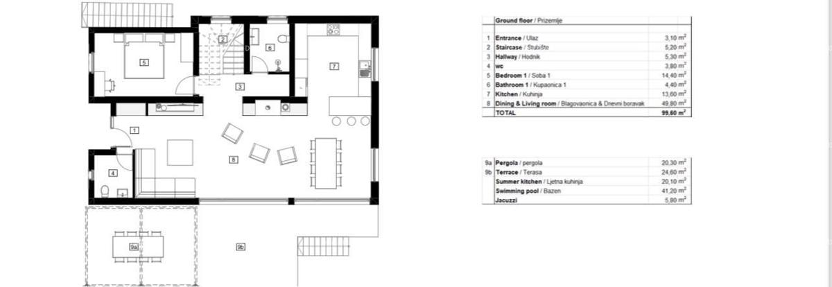
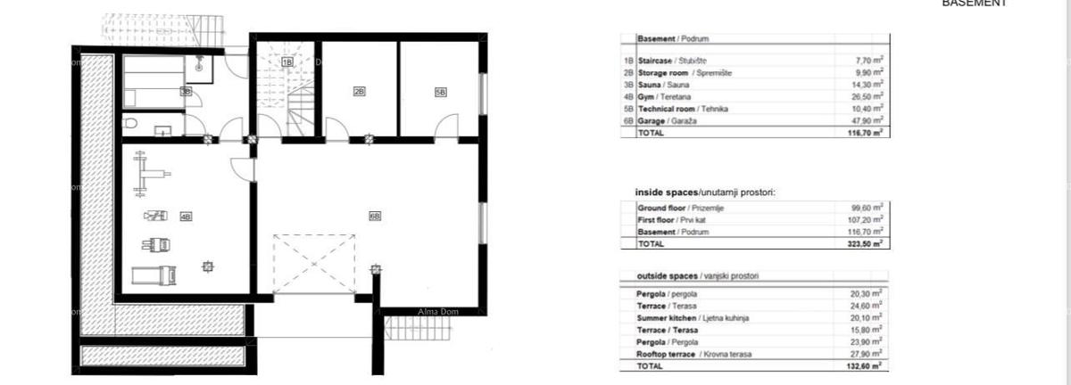
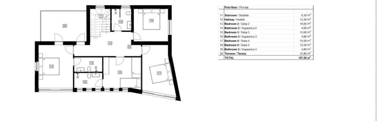
REC ID# 1223877 - KAŠTELIR