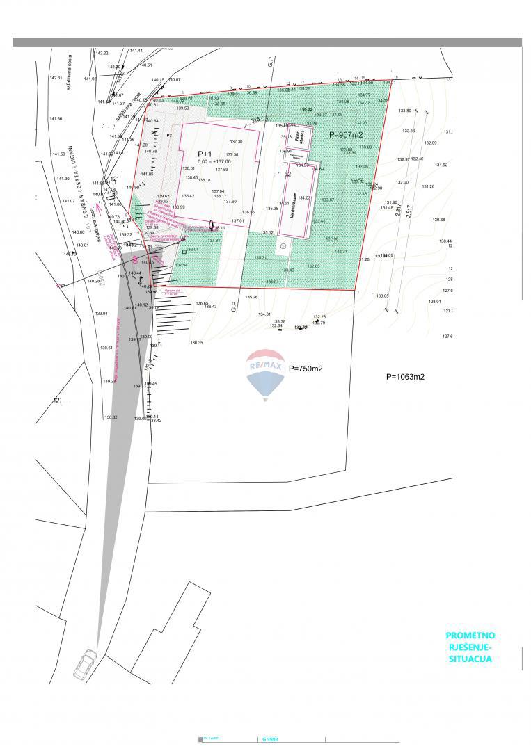
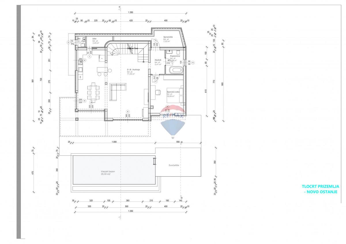
REC ID# 1234473 - LOVRAN