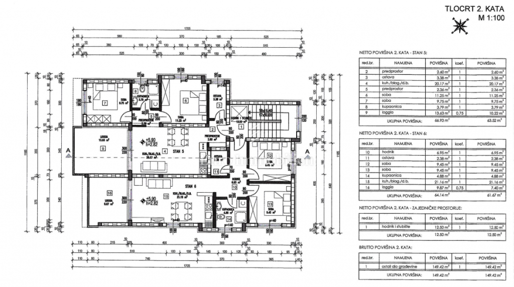
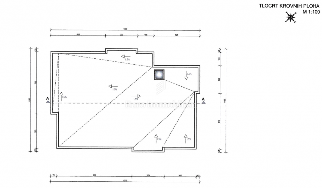
REC ID# 1248008 - NOVI VINODOLSKI