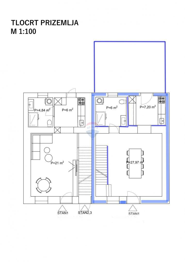
REC ID# 1222437 - NOVIGRAD