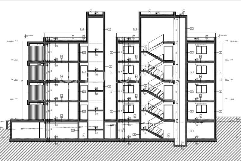
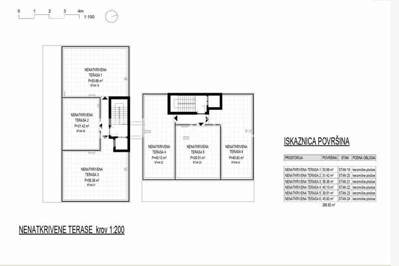
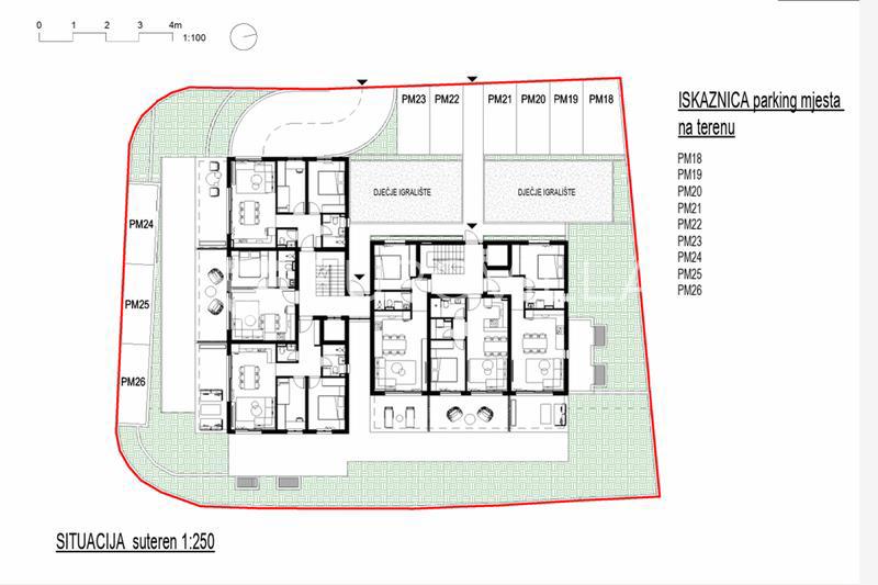
REC ID# 1220672 - OKRUG GORNJI