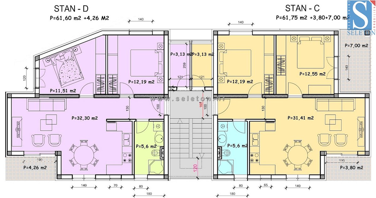
REC ID# 1202877 - POREČ