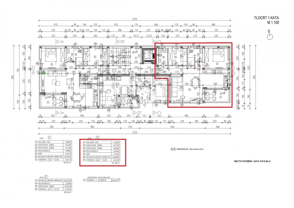
REC ID# 1230484 - POREČ