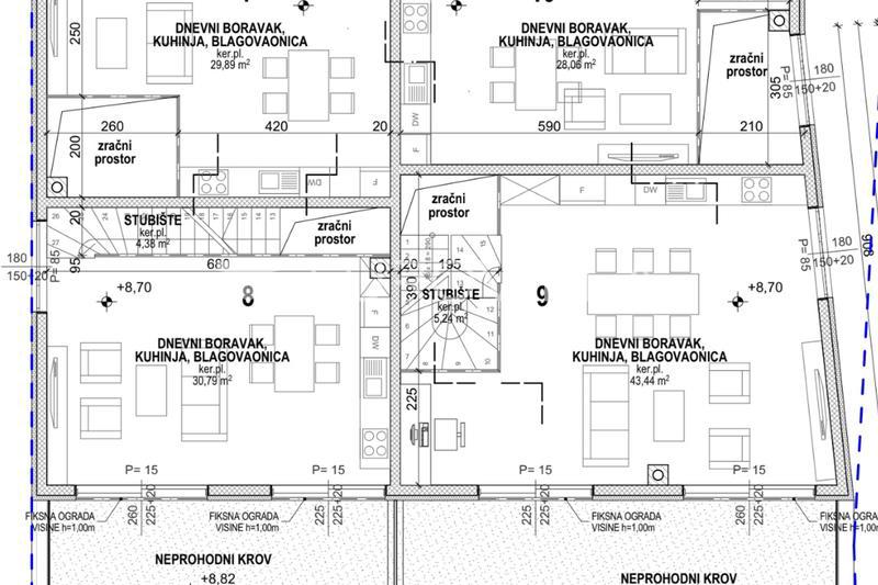
REC ID# 1248569 - POVLJANA