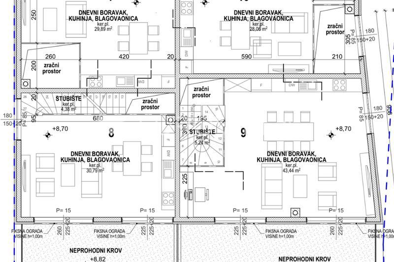
REC ID# 1248571 - POVLJANA