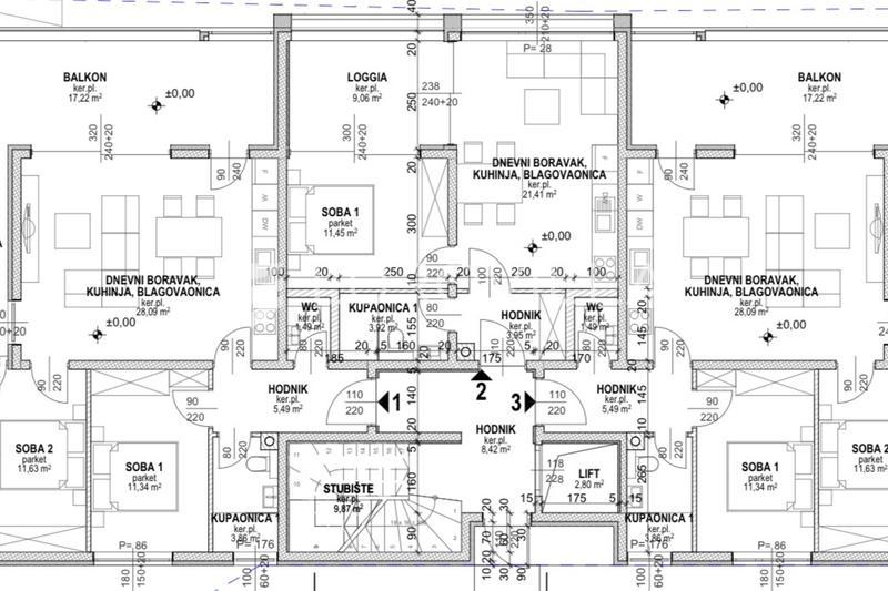
REC ID# 1249765 - POVLJANA