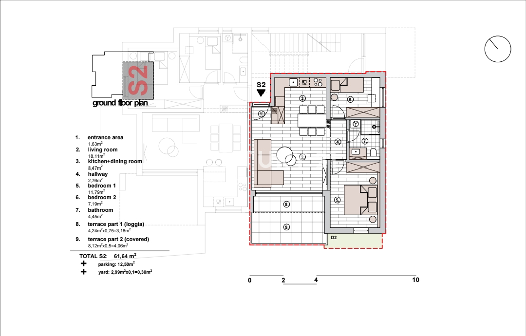
REC ID# 1230876 - PRIMOŠTEN