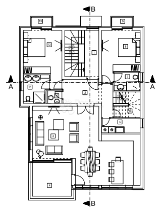
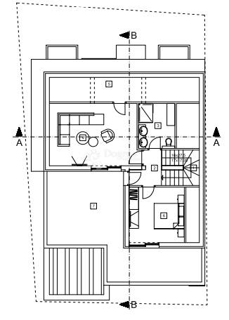
REC ID# 1236373 - ROVINJ