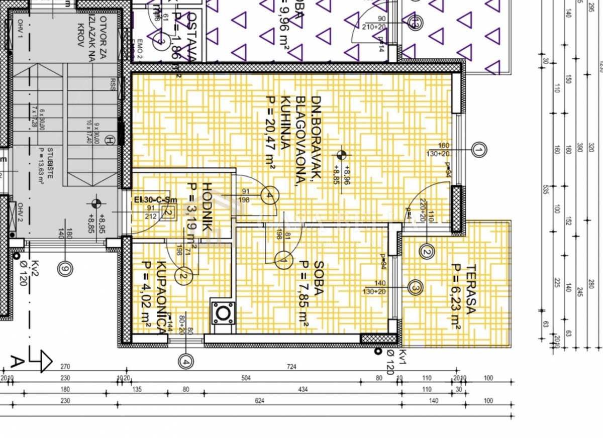
REC ID# 1233510 - RUDEŠ