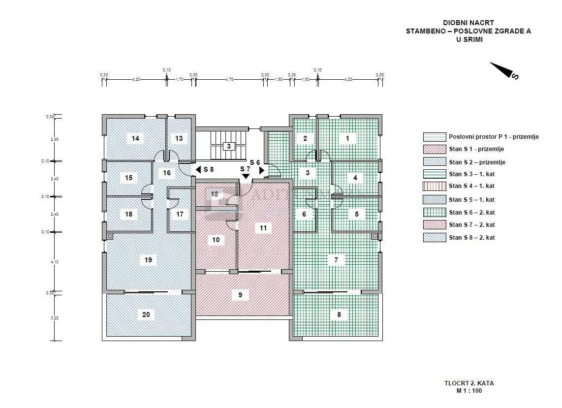
REC ID# 1167644 - SRIMA