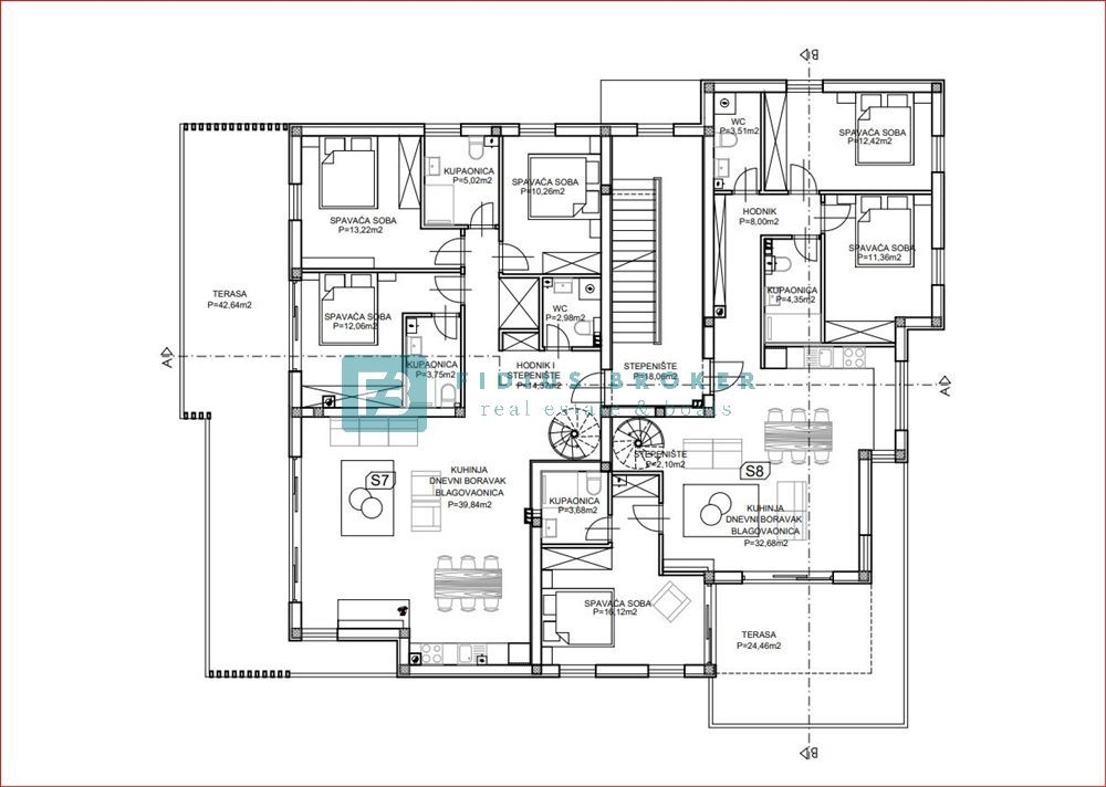
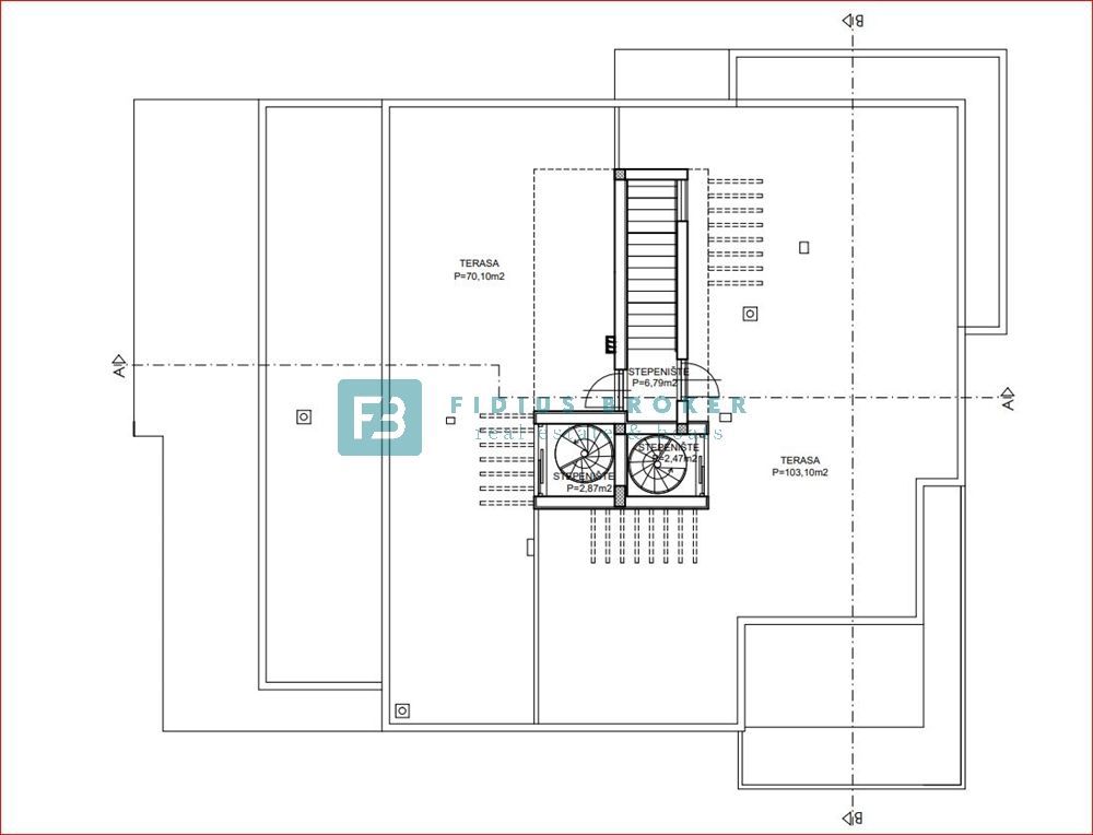
REC ID# 1248454 - SRIMA