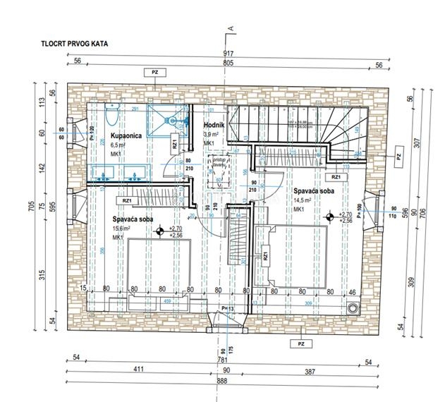
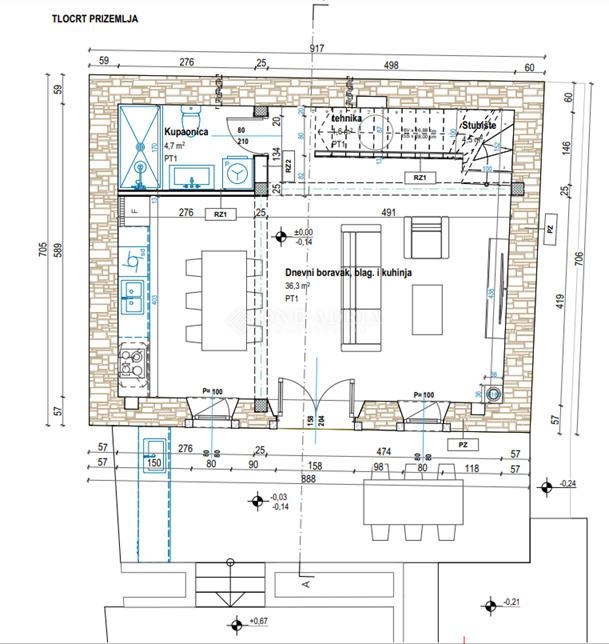
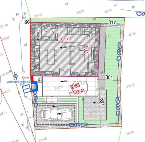
REC ID# 1226809 - TINJAN