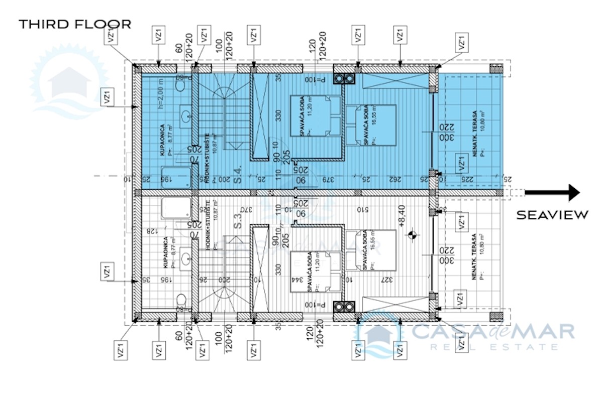
REC ID# 1050349 - CRIKVENICA