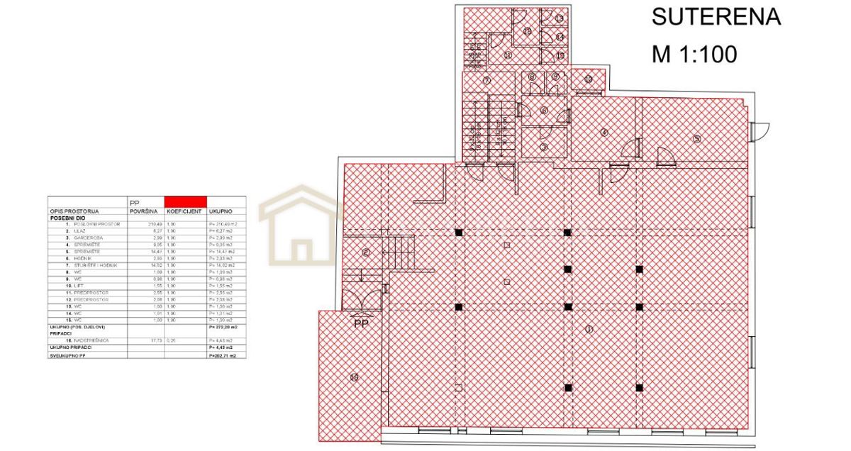
REC ID# 1219762 - CRIKVENICA