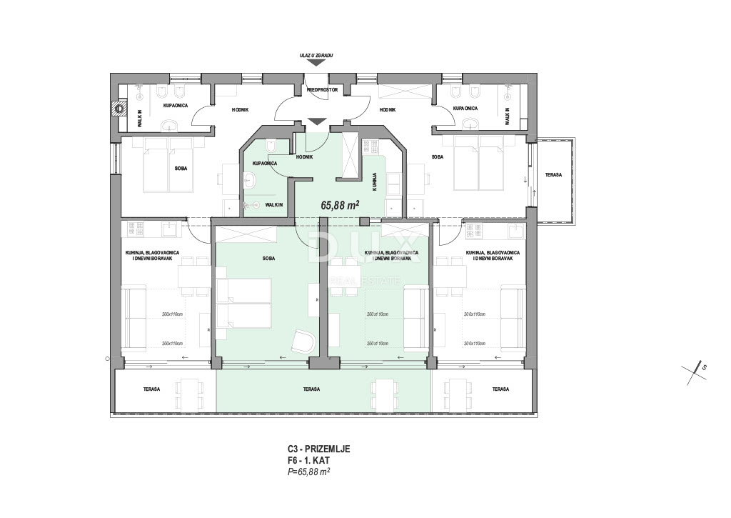
REC ID# 1224344 - IČIĆI