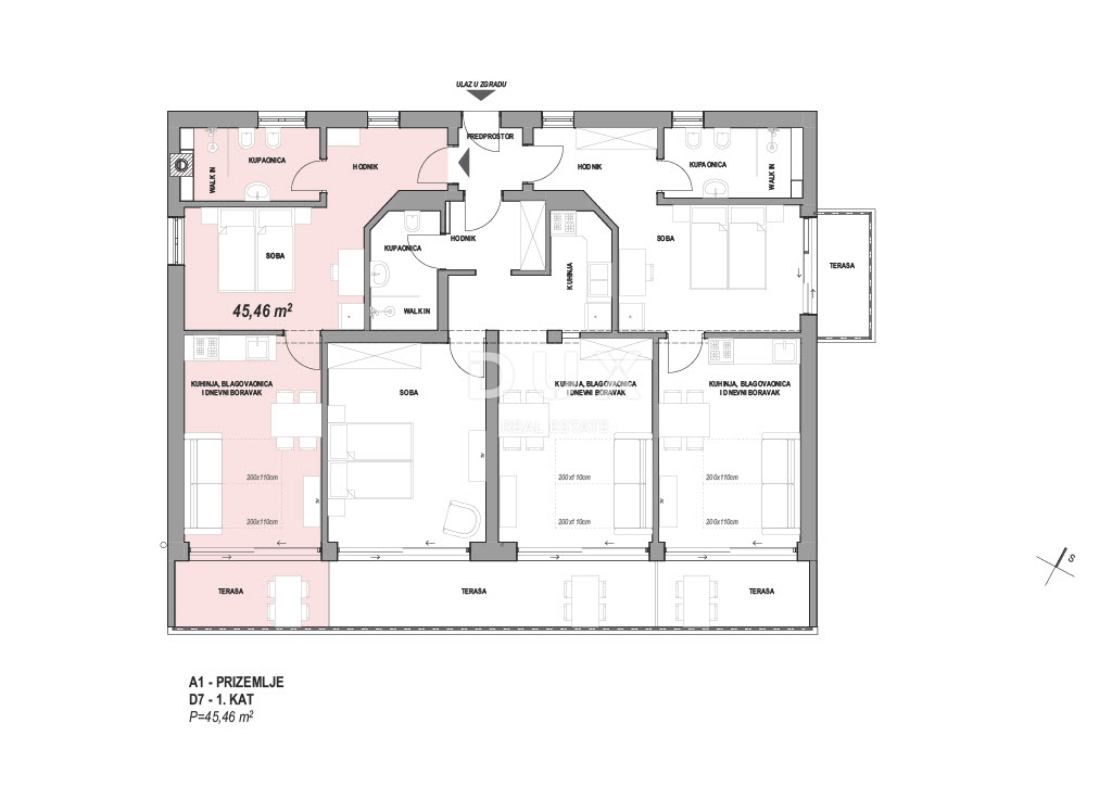
REC ID# 1224349 - IČIĆI