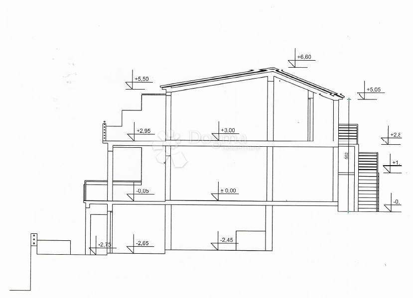
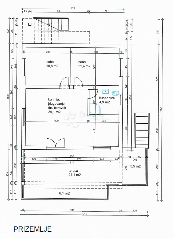
REC ID# 1227470 - KAPRIJE