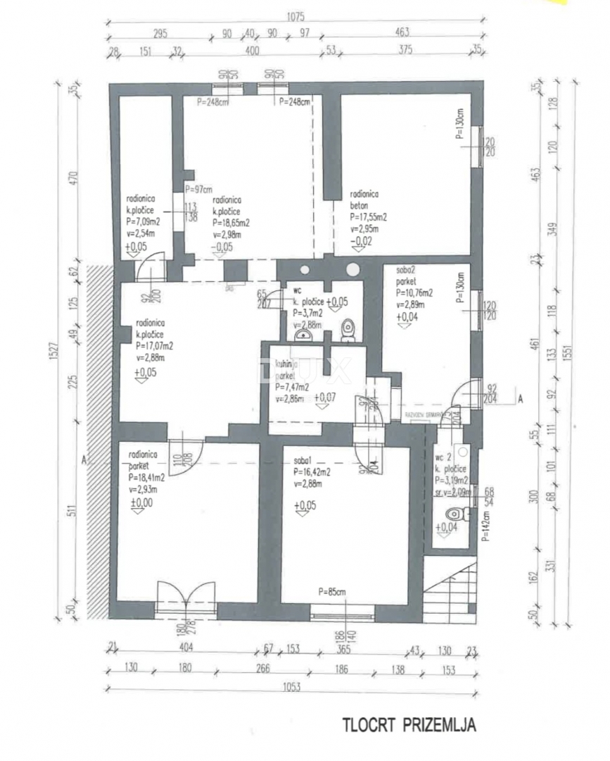
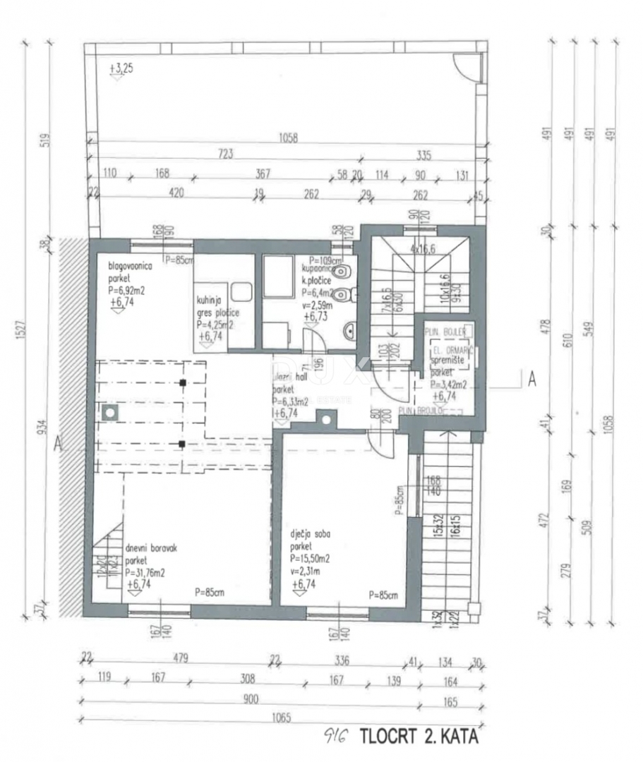
REC ID# 1218904 - MAKSIMIR