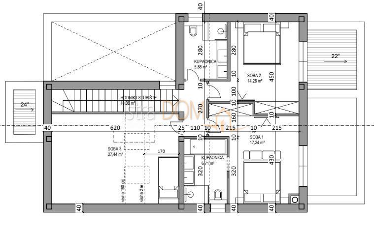
REC ID# 1240353 - MEDULIN