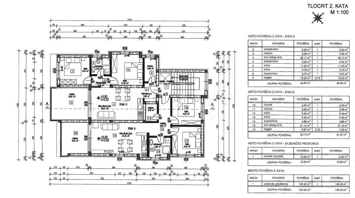
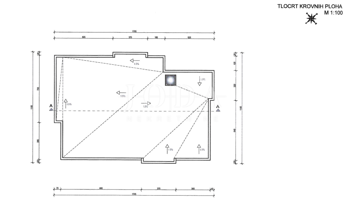
REC ID# 1241964 - NOVI VINODOLSKI